
driveway
location: andijk, the netherlands
client: Fam. Ooteman-Weel
year: 2016
status: unbuilt
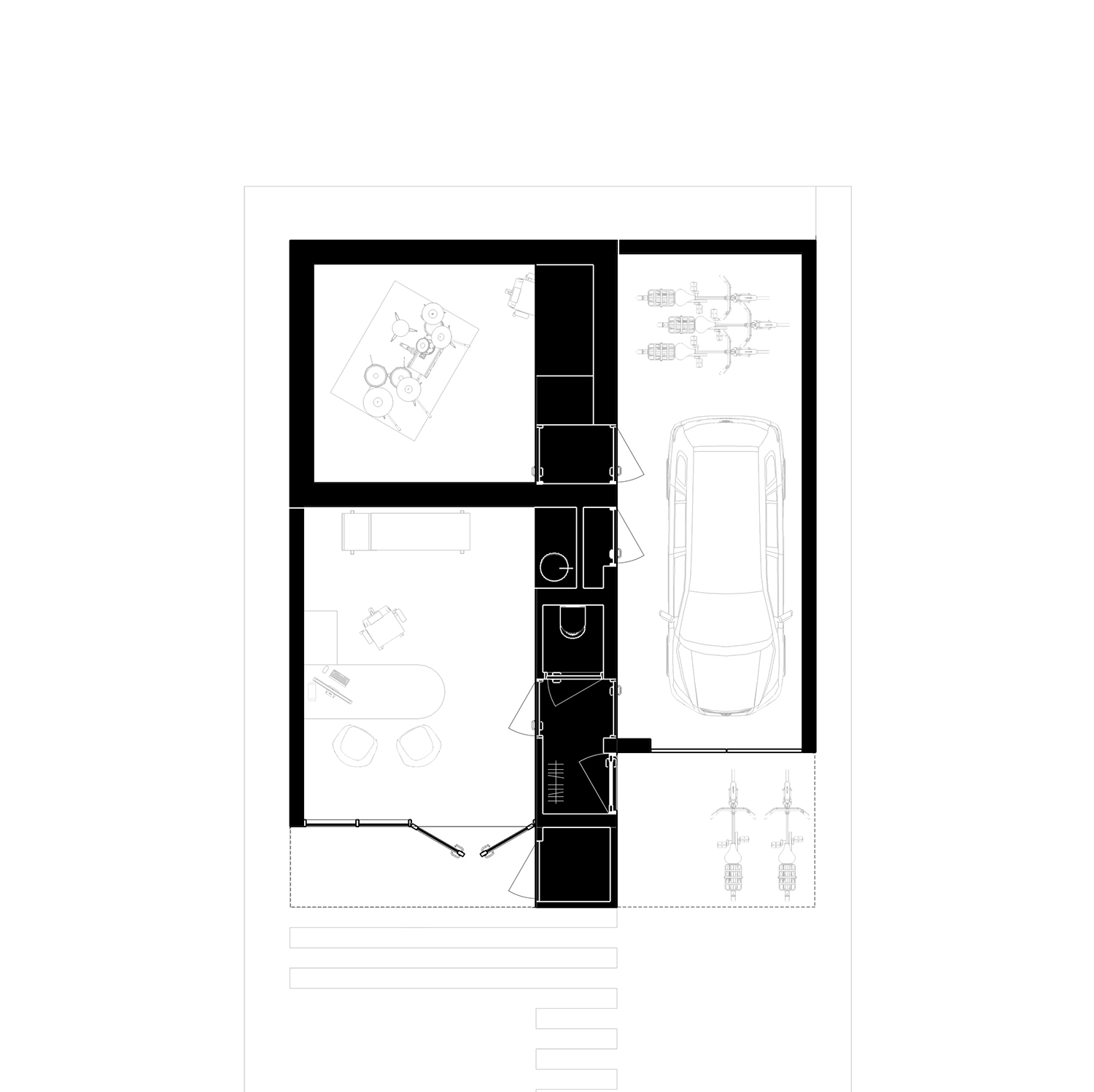
program: drum studio, nutricion pracice space, garage
gross floor area: 100 m2
Since there newly bought home didn’t provide the space required for their business and hobby, a young couple desired a small pavilion in their backyard. A pavilion wherein they could park their car safely, he could practice his drums and she could give clients nutritional advice. Three completely different programmatic components to be housed in one edifice.
To bind the aforementioned components a unifying roof was designed with one long ‘foot’ touching the ground. This ‘foot’ accommodates the mundane utilities such as the entrance, a toilet, a pantry and closet space. Each component has its own identity while using the protection and facilities of the communal roof. On one side the cement-block drumstudio and the glazed nutrition practice are located, the other side of the pavilion entails the garage for both their car and bicycles. To connect the pavilion to the backyard the paving of the driveway is finger welded together with the grass lawn in the same width of the ‘foot’ of the unifying roof.

axonometric

backyard

plan

section